Sign up to get new listings emailed daily! JOIN SIGN IN
Lynda Risch, E.C. MN & Beyond
Associate Broker
REALTOR®, SFR,
(612) 290-7607
Facebook Icon LinkedIn Icon YouTube Icon Instagram Icon Twitter Icon VCard Icon 

240 Henry Circle, Green Isle, MN 55338

New

15 Total Photos [Click to View All]

Listed By

Agency Name: Miller Real Estate
Agency Phone: 651-755-2138

Shown By

Agent Name: Lynda Risch, E.C. MN & Beyond
Agent Phone: (612) 290-7607
Agency Title: Counselor Realty

IDX logo

Property Description

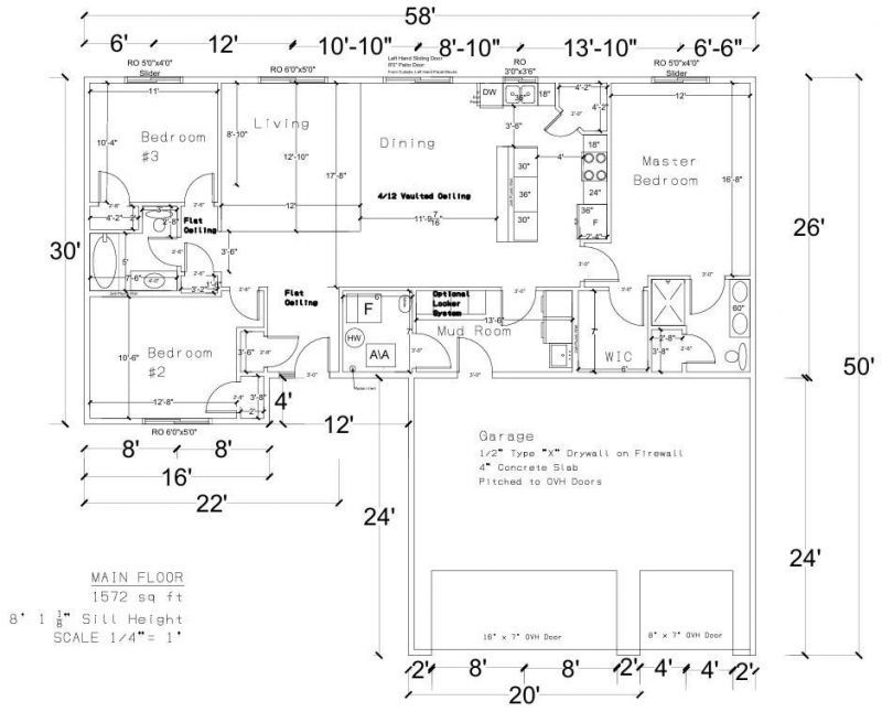
**TO BE BUILT/UNDER CONSTRUCTION SLAB ON GRADE SPEC HOME** Affordable one level living! This slab on grade floor plan features an attached 3 car garage, open floor plan for living room, kitchen and dining room with vaulted ceiling. Finishes included are Granite countertops, stainless steel appliances, soft close drawers, pantry and tile backsplash in kitchen. Private primary suite with walk in shower, walk in closet and dual sinks, Quartz tops in both bathrooms, laundry/mud room off of garage entrance plus much more. Inquire about the 1-0 Preferred Lender Paid Rate Buy Down.

240 Henry Circle | MLS# 7060571

This single family home located at 240 Henry Circle, Green Isle, MN 55338 is currently listed for sale with an asking price of $319,900. This property was built in 2026 and has 3 bedrooms and 2 full baths with 1572 sq. ft. Henry Circle is located in the Green Isle 7th Add subdivision within the Sibley East school district. Search Green Isle 7th Add real estate on lrisch.counselorrealty.com today.

Property Features

Property Type: Residential - Single Family
Basement: None
Cooling: Central Air
Fuel Type: Natural Gas
Garage: 3 car attached
Heating: Forced Air
Lot Size: 0.28 Acres
Roof Type: Asphalt
Stories: 1.0
Taxes: $286
Year Built: 2026

Feature Descriptions

Accessibility: No Stairs External, No Stairs Internal
Additional Living Info.: 3 BR on One Level, All Living Facilities on One Level, Main Floor Primary, Main Floor Bedroom, Main Floor Laundry
Appliances: Dishwasher, Microwave, Range, Refrigerator
Bath: 3/4 Primary, Private Primary, Main Floor Full Bath
Bathrooms 3/4: 1
Bathrooms Full: 1
Days on Site: 2
Dining: Informal Dining Room
Down Payment Resource: Yes
Exterior: Block, ICFs (Insulated Concrete Forms)
Foundation Size: 1572
Lot Dimensions: 134 x 72 x 130 x 112
Parcel#: 340212080
Parking: Attached Garage
Sewer: City Sewer/Connected
Water: City Water/Connected

Local Schools

School District: Sibley East

Estimate Your Payment

Estimated Payment

$ 1,819.78 per month $1,702.64 Principal & Interest $23.83 Property Tax $93.30 Homeowner's Insurance

Change Payment Information

%
years/fixed
yearly
yearly (est.)
(Payments are an estimate and may vary by lender)

Near By

Demographics



By searching Listing Data you agree to this End User License Agreement

Copyright 2026 Regional Multiple Listing Service of Minnesota, Inc. All rights reserved.

Terms of Use

Agency License Information: Counselor Realty, Inc. is licensed in Minnesota and Wisconsin; Counselor Realty, Inc. of Alexandria is licensed in Minnesota; Counselor Realty Detroit Lakes, LLC is licensed in Minnesota; Counselor Realty of Rochester is licensed in Minnesota; Counselor Realty of Victoria, LLC is licensed in Minnesota; Counselor Realty of Brainerd is licensed in Minnesota.

Disclaimer: All information deemed reliable but not guaranteed. All properties are subject to prior sale, change or withdrawal. Neither listing broker(s) or information provider(s) shall be responsible for any typographical errors, misinformation, misprints and shall be held totally harmless. Listing(s) information is provided for consumers personal, non-commercial use and may not be used for any purpose other than to identify prospective properties consumers may be interested in purchasing. Information on this site was last updated 04/30/2026. The listing information on this page last changed on 04/30/2026. The data relating to real estate for sale on this website comes in part from the Internet Data Exchange program of Delta Media Group MLS (last updated Thu 04/30/2026 12:00:30 AM EST) or RMLS-MN MLS (last updated Wed 04/29/2026 11:53:26 PM EST). Real estate listings held by brokerage firms other than Counselor Realty may be marked with the Internet Data Exchange logo and detailed information about those properties will include the name of the listing broker(s) when required by the MLS. All rights reserved.

By searching Listing Data you agree to this End User License Agreement
© 2026 Regional Multiple Listing Service of Minnesota, Inc. All rights reserved.


Listing data and photos distributed by MLSGRID
Member Participants (and their affiliated licensees, if applicable) shall indicate on their websites that IDX information is provided exclusively for consumers’ personal non-commercial use, that it may not be used for any purpose other than to identify prospective properties consumers may be interested in purchasing, that the data is deemed reliable but is not guaranteed by MLS GRID, and that the use of the MLS GRID Data may be subject to an end user license agreement prescribed by the Member Participant’s applicable MLS if any and as amended from time to time. MLS GRID may, at its discretion, require use of other disclaimers as necessary to protect Member Participant, and/or their MLS from liability.
Based on information submitted to the MLS GRID. All data is obtained from various sources and may not have been verified by broker or MLS GRID. Supplied Open House Information is subject to change without notice. All information should be independently reviewed and verified for accuracy. Properties may or may not be listed by the office/agent presenting the information.



Privacy Policy / DMCA Notice / ADA Accessibility

Login to My Homefinder

Pixel